El nuevo centro de pruebas de integración de campus inteligentes (SCIT) hub de la Universidad Metropolitana de Toronto (Canadá) posibilitará la investigación de vanguardia en tecnologías para edificios inteligentes. Además, el propio edificio formará parte de la investigación, convirtiéndose en un laboratorio viviente. Como parte de la red de campus vivientes (NLC) que incluye a otras siete universidades de Canadá, se espera que el SCITHub sirva como nexo para las diversas investigaciones basadas en datos sobre tecnología de edificios inteligentes que se llevan a cabo en sus respectivos campus. El objetivo del SCITHub es desarrollar, probar y presentar una gama completa de tecnologías para impulsar los hogares y oficinas del futuro.

Diseñado como un modelo de construcción inteligente y sostenible posterior a 2030, esta instalación 100% habilitada digitalmente integra una amplia gama de tecnologías de sistemas de construcción, como calefacción, ventilación y aire acondicionado (HVAC); iluminación, envolvente del edificio, seguridad; tecnología de la información y de la comunicación (TI) y comunicaciones, que ayudarán a impulsar el entorno construido de Canadá hacia emisiones netas cero.
El SCITHub se caracteriza por tener tres líneas de investigación: apoyar los esfuerzos mundiales de sostenibilidad para alcanzar emisiones netas cero, ofrecer una diversidad de tipos de espacios para la investigación avanzada sobre cómo interactúan los humanos y los edificios, y ayudar a desarrollar nuevas tecnologías que mejoren la comodidad, la satisfacción, la salud y la productividad en los lugares donde los ocupantes viven, aprenden y trabajan (campus, ciudades, hogares y lugares de trabajo inteligentes).
Estructura del campus de prueba SCITHub
Con una financiación aproximada de 6 millones de dólares y a punto de finalizar su construcción, el SCITHub tendrá una superficie de más de 300 m² y una fachada de madera maciza, que integrará un sistema de paneles estructurales inteligentes (ISP) exteriores.

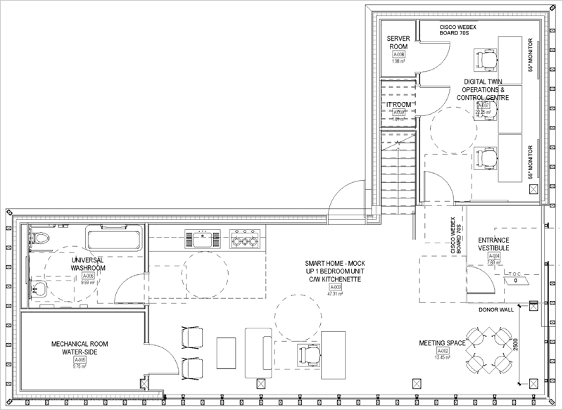
El edificio dispondrá de dos plantas. En la planta baja se ubicará el espacio de pruebas de I+D para hogares inteligentes, que integrará una red troncal digital para conectar todos los equipos y sensores digitales. Estos dispositivos a su vez están conectados a un centro de mando y control inteligente, donde se centralizará una gran cantidad de información sobre los sistemas del edificio. Todos los datos aportados por los equipos integrados y el campus en general se recopilarán en un gemelo digital cognitivo.
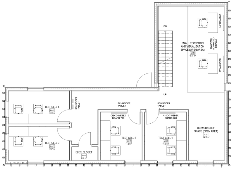
Con un plano de planta abierto y espacios de oficinas divididos, el segundo piso también albergará el laboratorio habitable de Schneider Electric, que incluye una suite de visualización, un taller para desarrollar, probar y validar tecnologías power of ethernet (PoE) y cuatro celdas de prueba para comparar las diferentes tecnologías y controles en condiciones equivalentes.

Respecto a la tecnología que se integrará en el edificio, destacan sus tres sistemas de HVAC totalmente eléctricos paralelos, que respaldan el desarrollo de algoritmos de detección de fallas y optimización energética, para mantener los edificios funcionando a su máximo rendimiento.
Los tres sistemas HVAC estarán gestionados desde una sala mecánica, conectados a un sistema de intercambio GEO permitiendo un funcionamiento de alto rendimiento con cero emisiones netas de carbono.

Al ser un edificio 100% digital, el SCITHub integrará todos los sistemas y funciones del edificio, incluyendo climatización, iluminación, envolvente, seguridad, TI y comunicaciones, para que puedan optimizarse conjuntamente. Como cada sistema funcionará en conjunto, los datos se recopilarán y se incorporarán al gemelo digital, permitiendo a los investigadores que estén tanto dentro como fuera del edificio disponer de un acceso digital a los datos.
Bancos de pruebas para hogares inteligentes y análisis de datos
Los científicos tendrán a su disposición tres bancos de pruebas ubicados en el SCITHub. El primer banco de pruebas, denominado Residenciales integrados de vida asequible, está ubicado en la planta baja y proporciona un espacio para probar soluciones de hogar inteligente para cocinar, comer, dormir y disfrutar del tiempo libre, relacionadas con el ahorro de energía, la seguridad, el confort térmico y el mantenimiento predictivo. Este entorno altamente monitorizado estará equipado con dos sistemas de climatización distintos.

Por su parte, el banco de pruebas Laboratorio viviente de análisis de edificios inteligentes (SBAL) es un espacio de investigación que conecta tecnologías de climatización de vanguardia con bajas emisiones de carbono con sistemas de gestión energética, iluminación, seguridad y TI/comunicación.
Este espacio estará equipado con materiales esenciales para evaluar el rendimiento de los edificios durante la operación de estos sistemas. De esta forma, los investigadores tendrán la posibilidad de obtener datos más precisos y desarrollar mejores estrategias y aplicaciones de tecnología inteligente en entornos residenciales y comerciales.
El tercer banco de pruebas es el Centro de operaciones y visualización de datos (CVOD), que funcionará como un cerebro donde las células de prueba del SBAL se conectan con una plataforma de ingesta, gestión y análisis de datos alojada en la nube.
El CVOD se encargará de procesar diversos datos del gemelo digital cognitivo de la universidad, como la automatización del edificio, sensores de flujo peatonal y de tráfico del campus, monitores de infraestructura del campus, datos de estaciones meteorológicas y sistemas de gestión de instalaciones como mantenimiento, quejas de ocupantes, planificación del espacio, etc. Este centro consta de 10 monitores de alta definición y cortafuegos para proteger y transmitir datos del SBAL y del campus de la universidad al repositorio en la nube.
Áreas de investigación en el SCITHub
Los investigadores del SCITHub se centrarán en tres áreas de investigación. Una de las áreas se enfocará en la integración de edificios conectados en la ciudad inteligente. Para ello, el SCITHub ayudará a los investigadores a avanzar en la exploración de edificios inteligentes mediante la estandarización y la digitalización.
La segunda área de investigación será mejorar los edificios para la gente. La investigación realizada en SCITHub se centrará en la investigación de edificios inteligentes que mejorarán la salud, la seguridad y los estilos de vida de los usuarios.
Por último, se apoyará a mejorar los edificios para el planeta. En este caso, la investigación de SCITHub ayudará a respaldar los objetivos de carbono neto cero a nivel mundial mediante el desarrollo de algoritmos y nuevas tecnologías para reducir el consumo de energía y las emisiones de gases de efecto invernadero (GEI) asociadas.